Exposé Nr. 1730

8.917,2 qm Schöne Grundstücke "Rotholsweg" in Ulrichstein
Straße:
Rothohlsweg
Ort:
Ulrichstein
Baujahr:
Grundstücksfläche:
ca. 8,917 m²
Nettokaltmiete:
€ 0,00
Nebenkosten:
ca. € 0,00
Details
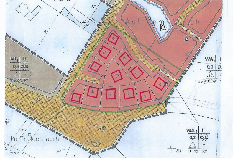
Das Grundstück hat eine gesamte Größe von 8.917,2 m². Die Fläche wird zusammenhängend verkauft. Nach dem Erwerb kann die Fläche zum Zwecke des errichtens von Einzel- sowie Doppelhäusern geteilt werden.
Den Rest entnehmen Sie gerne den Planungsunterlagen.
Kaufpreis auf Anfrage!
Lagebeschreibung:
Flur 10 Flurstücke 20/0 u. 21/0--- Ecke Kälberweideweg/Verbindungsweg.
Sehr gute und ruhige Lage in einer gewachsenen, reinen Wohnsiedlung in unmittelbarer Stadt- und Waldnähe.
Fotos


